Gezondheidscentrum Valkenburg
De Onze Lieve Vrouw van Altijddurende Bijstandskerk uit 1960, in het hart van Valkenburg, wordt herontwikkeld tot Gezondheidscentrum Valkenburg. De structuur en Mariakapel van het kerkgebouw dat geheel is opgenomen in het groen blijft hierbij bestaan. Tevens respecteren wij de bestaande hoogte die de kerk kenmerkt en gebruiken deze als basis voor het nieuwe ontwerp. Waarbij binnen de kerk vier verdiepingen komen met in totaal ruim 3.000 vierkante meter verhuurbaar oppervlak voor zorgverleners zoals huisartsen, fysiotherapeuten, podologen, huidartsen en logopedisten. Voor OOK een unieke opdracht waarbij wij ons de geschiedenis van Valkenburg eigen gemaakt hebben.
Locatie
Valkenburg
Opdrachtgever
Getgripp en Vastmed
Jaar
2019 - heden
Status
In ontwikkeling
Omvang
4500m2
Categorie
architectuur, interieur, zorg
Partners
Wijnen Bouw Horst BV
Palte BV
Bravea
Palte BV
Bravea
Team
Jojanneke Tap
Jasper Timmerman
Nino Lentz
Jasper Timmerman
Nino Lentz
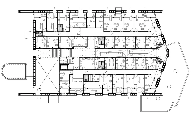
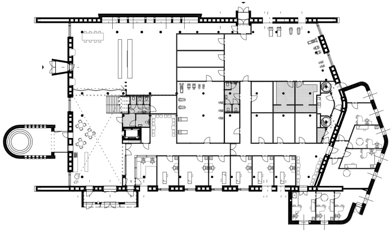
Uniek aan deze kerk zijn de gevels van mergelsteen. Wat een kenmerkend materiaal is voor deze streek. Door de gevels te benutten als zijnde uitgangspunt binnen het ontwerpproces, resulteert dit in een enorme, lege ruimte met een immense hoogte. Binnen die bestaande wanden hebben wij als zodanig invulling gegeven aan het gezondheidscentrum met daarin diverse functies. Op de begane grond komen naast de ruime entree de apotheek, oefenruimtes, een wachtruimte en diverse behandelkamerkamers voor de zorgverleners die zich hier straks vestigen. Op zowel de eerste als de tweede verdieping bevinden zich de spreek- en behandelkamers. Dit is ook de plek waar de karakteristieke koepel van de oorspronkelijke kerk behouden blijft.
Aan de kopgevels van de kerk zitten originele gevelhoge glazen puien die prachtig uitzicht geven op aan de ene zijde de Geul en aan de andere zijde het karakteristieke centrum van Valkenburg. Deze ‘as’ hebben wij doorgezet in het ontwerp waarbij we het nieuwe volume hebben opgesplitst in twee delen. De verschillende functies bevinden zich op alle verdiepingen aan de langsgevels waardoor de as sterk wordt gemaakt. Door het maken van een lichtstraat wordt deze as nog eens extra benadrukt. Op deze manier blijft de kenmerkende hoogte van de kerk zichtbaar en blijven de doorkijkjes op de Geul en de historische binnenstad bestaan. Middenin deze as, ook wel de canyon genoemd, zit ook de oude koepel waardoor de ruimte zich nog meer opent en de oude functie zichtbaar blijft. De canyon is gevuld met groen en geeft een fijn uitzicht vanuit de behandelkamers die aan de zijde van de canyon zitten. Die via de nieuwe lichtstraat prachtig, indirect licht binnenkrijgen.
Aan de kopgevels van de kerk zitten originele gevelhoge glazen puien die prachtig uitzicht geven op aan de ene zijde de Geul en aan de andere zijde het karakteristieke centrum van Valkenburg. Deze ‘as’ hebben wij doorgezet in het ontwerp waarbij we het nieuwe volume hebben opgesplitst in twee delen. De verschillende functies bevinden zich op alle verdiepingen aan de langsgevels waardoor de as sterk wordt gemaakt. Door het maken van een lichtstraat wordt deze as nog eens extra benadrukt. Op deze manier blijft de kenmerkende hoogte van de kerk zichtbaar en blijven de doorkijkjes op de Geul en de historische binnenstad bestaan. Middenin deze as, ook wel de canyon genoemd, zit ook de oude koepel waardoor de ruimte zich nog meer opent en de oude functie zichtbaar blijft. De canyon is gevuld met groen en geeft een fijn uitzicht vanuit de behandelkamers die aan de zijde van de canyon zitten. Die via de nieuwe lichtstraat prachtig, indirect licht binnenkrijgen.
Twee volumes tussen gevels van traditioneel mergelsteen
Toevoegen van gevelopeningen om meer daglicht te krijgen
De twee huidige entrees blijven behouden, maar worden geheel vernieuwd. De bestaande entree aan het Walramplein zal de hoofdentree blijven van het gezondheidscentrum. De oude achter-entree aan de Sint Pietersstraat zal de entree worden voor de Apotheek waarbij deze ook via de hoofdentree benaderbaar is. Tevens worden de bestaande, herkenbare lange puien die terugliggen in het mergelwerk vervangen voor nieuwe lange puien. Door de dikte van het mergel krijgen deze een diepe negge. Er is bewust gekozen om nieuw te plaatsen openingen, die nodig zijn voor de achterliggende functies, op de gevel te maken. Hierdoor ontstaat er een duidelijk onderscheid tussen bestaande en nieuwe gevelopeningen. Ramen die niet meer nodig zijn worden weer met mergel dichtgelegd. Doordat de kleur van mergel nooit hetzelfde is, zullen deze gesloten raamopeningen altijd zichtbaar blijven. Zo komen de geschiedenis, het heden en de toekomst hier fraai samen. Precies daarom sluit dit gebouw naadloos aan bij de ontwerpambitie van OOK, aan wat we mee willen geven aan gebouwen! Namelijk het zijn van een sociaal, betekenisvolle, duidelijk leesbare, gezonde omgeving. Met respect voor mens en natuur.
OOKarchitecten BV
Schimmelpenninckkade 40
3813AE Amersfoort
Contact
033-4893320
info@ookarchitecten.nl
Social
Privacy