
Kop Keerkring
Tegen de prachtige binnenstad van Amersfoort ontstaat een nieuwe gemengde stadswijk waar wordt gewerkt, gewoond en geleerd: De Keerkring. Het gebied is volop in beweging en de afgelopen jaren zijn er zowel appartementen als stadswoningen gebouwd, er is laagbouw en hoogbouw met enkele hoogteaccenten die deze strategische plek levendig en uniek maken. Voor de kop van deze Keerkring ontwierp OOK samen met opdrachtgevers IMOSS en Schoonderbeek een contextgericht appartementengebouw wat gekenmerkt wordt door een duidelijke stedenbouwkundige kop. De zogenaamde “Kop Keerkring” vormt dan ook een belangrijke hoek in de stedelijke structuurlijn. Uitgangspunten voor de opdracht waren het creëren van een prettige, sociale leefomgeving die zich manoeuvreert tussen de bestaande context.
Locatie
Amersfoort
Opdrachtgever
Schoonderbeek BV Bouw- en Aannemingsbedrijf
Jaar
2020-heden
Status
Bouwvergunning is verleend
Omvang
9 maisonnette woningen
21 appartementen
21 appartementen
Categorie
architectuur, woningbouw
Partners
SPA WNP
Ingenieursburo Gravitas
Ingenieursburo Gravitas
Team
Martin Timmerman
Jojanneke tap
Simon Wassink
Jojanneke tap
Simon Wassink
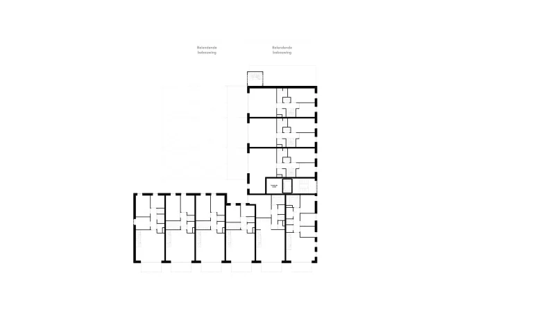
Als antwoord ontwierp OOK een middelhoog appartementengebouw met daarin 9 maisonnettes met entrees en tuinen aan de straatzijde die zorgen voor levendigheid en dynamiek in de plint. De 21 bovenliggende appartementen worden omsloten via een galerij aan de binnenzijde van het gebouw waar zich eveneens de bergingen en parkeerplaatsen bevinden. De buitenruimtes van de appartementen bevinden zich in de vorm van balkons of getrapt in de vorm van terrassen aan de straatgevels van het gebouw. De buitenruimtes en galerijen zijn voorzien van geïntegreerde groenvoorzieningen, waardoor in combinatie met de mee-ontworpen balustrades en erfafscheidingen een rustig gevelbeeld kan ontstaan.
Juist door hier een middelhoog gebouw te plaatsen voorkomen wij dat er een wand van hoogbouw bestaat op deze toch centrale plek in de wijk. De bebouwing is georiënteerd op de belangrijkste openbare ruimte; geveltuintjes en entrees aan de straatzijde moeten bijdrage aan de kwaliteit van de openbare ruimte. Het appartementengebouw is voorzien van een setback, dit in verband met bezonning en om de windhinder door valwinden te reduceren. Setbacks dragen bovendien bij aan het geven van menselijke schaal en het verkleinen van de korrelgrootte.
Als een monoliet opgetrokken van metselwerk in verschillende verbanden, met invullingen van glas, kenmerkt dit volume zich op de prominente hoek. Gekozen is voor een sterke homogeniteit in het plan, die ontstaat door het gebruik van dezelfde gevelsteen en de plasticiteit van de gevels. Ook zijn rondom het hele blok de overgangen tussen privé en openbaar vormgegeven door voortuinen met tuinmuren. Het gebouw is zo ingebed in zijn omgeving. Dat betekent dat we de leefomgeving duurzaam en klimaatbestendig inrichten waarbij we tijdens het ontwerpconcept rekening houden met de invloeden van de natuur.
Duurzaamheid en klimaatbestendigheid gaat binnen dit project nét weer een stap verder. OOK heeft hiervoor samen met gemeente Amersfoort gezocht naar passende oplossingen. Nieuwbouw biedt kansen voor een klimaat-robuuste inrichting. Binnen de levensduur van de bouwwerken die we nu bouwen, nemen zware buien, hitte en perioden van droogte fors toe. Voor de Kop Keerkring hebben wij hier in grote mate rekening mee gehouden. Zo beperken wij de hitteaccumulatie door een hoge isolatiewaarde. We voorkomen dat bij heftige buien het regenwater vanaf de straat gemakkelijk het gebouw in kan stromen door het terrein te voorzien van half verharding en een wadi. Tevens zorgt hoog groen in de volle grond voor een goede afwatering. Tot slot wordt biodiversiteit toegepast in de buitenruimtes. Zwaluwkasten en onderkomens voor mussen maken onderdeel uit van het ontwerp en zijn in overleg met ecologen op de juiste posities geplaatst in het plan.
OOKarchitecten BV
Schimmelpenninckkade 40
3813AE Amersfoort
Contact
033-4893320
info@ookarchitecten.nl
Social
Privacy