
Mobiquity Europe
Recent is het nieuwe interieur van het Europese hoofdkantoor van digitaal consultancybureau Mobiquity in de financiële wijk “Zuidas” van Amsterdam opgeleverd.
Locatie
Amsterdam
Opdrachtgever
Mobiquity Europe
Jaar
2020-2021
Status
Opgeleverd
Omvang
3000m2
Categorie
interieur, kantoren
Partners
Projectmanager Solved Projectmanagement
Interieurbouwer: Interieurbouw Haklander bv
Fotografie: Maarten Noordijk Photography
Interieurbouwer: Interieurbouw Haklander bv
Fotografie: Maarten Noordijk Photography
Team
Robin van Rossum
Jojanneke Tap
Simon Wassink
Lisa Beijer
Jojanneke Tap
Simon Wassink
Lisa Beijer
Een kantoor dat kan meegroeien met de ambities van het bedrijf.
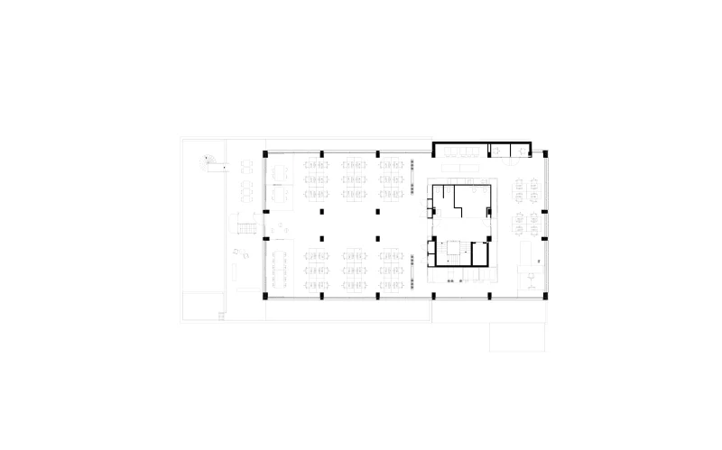
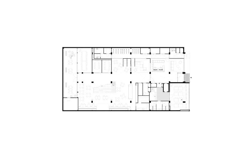
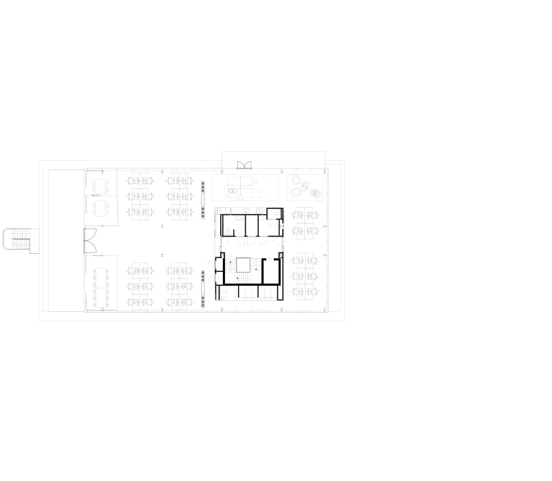
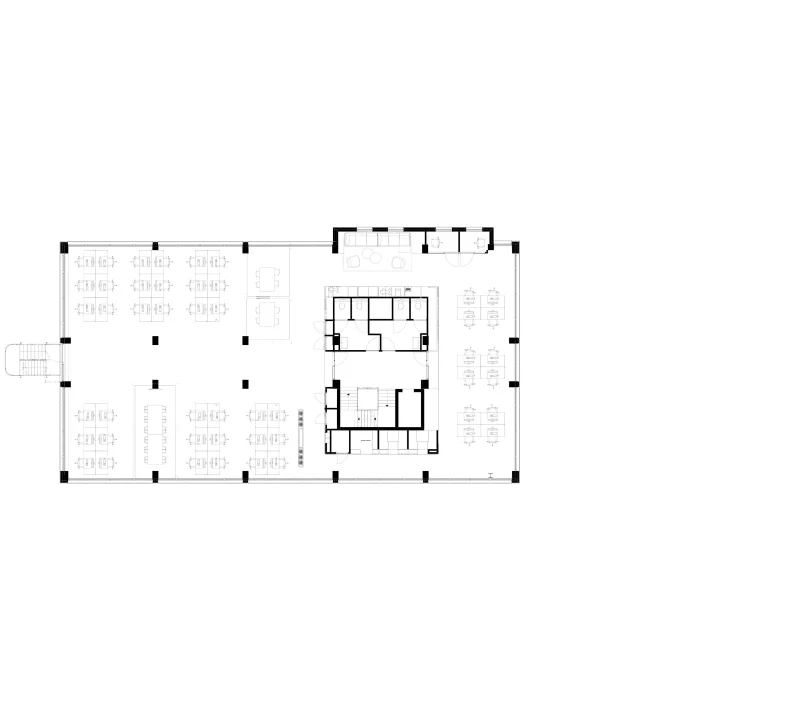
De opdracht aan OOK was duidelijk: ontwerp een interieur dat dicht bij ons DNA blijf: Diversiteit, vrijheid en coöperatieve geest. Een kantoor dat kan meegroeien met de ambities van het bedrijf. Als antwoord hierop ontwierp OOK een kantoor als campus met op de begane grond het kloppend hart. Hier zijn o.a. receptie, restaurant, ontmoetingsruimtes en een game-area gesitueerd. De vier verdiepingen van het kantoor zijn ingericht met een diversiteit aan flexibele werkplekken.
OOK won de prijsvraag die was uitgeschreven voor de inrichting van het nieuwe kantoor van Mobiquity. Het betrof in basis de inrichting van vier traditionele kantoorverdiepingen. Maar de hoge parkeergarage op de begane grond triggerde OOK. Na enkele sessies met de medewerkers kwam sterk naar voren dat ze veel dingen samendoen. De medewerkers komen uit verschillende landen en het gezamenlijk eten is voor hen erg belangrijk. Voor de lunch was daarom een aparte ruimte nodig. De begane grond was daar ideaal voor. OOK nam daarom het ontwerp van de begane grond mee als sociaal hart van het gebouw.
OOK won de prijsvraag die was uitgeschreven voor de inrichting van het nieuwe kantoor van Mobiquity. Het betrof in basis de inrichting van vier traditionele kantoorverdiepingen. Maar de hoge parkeergarage op de begane grond triggerde OOK. Na enkele sessies met de medewerkers kwam sterk naar voren dat ze veel dingen samendoen. De medewerkers komen uit verschillende landen en het gezamenlijk eten is voor hen erg belangrijk. Voor de lunch was daarom een aparte ruimte nodig. De begane grond was daar ideaal voor. OOK nam daarom het ontwerp van de begane grond mee als sociaal hart van het gebouw.
Een donkere, hoge en kale ruimte, zo zou je de begane grond die werd gebruikt als parkeergarage kunnen beschrijven. OOK zag juist hier de potentie voor het kloppend hart van Mobiquity. OOK verplaatste de entree zodat je centraal binnen komt en bedacht een enorm gat in het dak aan de achterzijde voor een heerlijk lichte patio. Bij binnenkomst word je blik direct getrokken richting de lichte en groene patio. Door de hoogte die de parkeergarage kende ontstond er de mogelijkheid voor een tussenvloer waar flexibele werkplekken en een game-area gesitueerd zijn.
OOK werkt in beginsel met natuurlijke materialen zoals blank metaal, beton en blank hout. Dit zijn materialen die al mooi zijn bij gebruik maar nog mooier worden bij verouderen. Deze ingrediënten passen naadloos in de karakteristieke structuur van de begane grond. Op de verdiepingen bevindt zich een meer ‘standaard kantoor’ met systeemplafond, glas en een centrale kern. OOK besloot een knip te maken tussen de uitstraling van de verdiepingen en de begane grond, waarbij de herkenbare zwarte kern met veel functies en materialen de constante is op alle verdiepingen.
OOK werkt in beginsel met natuurlijke materialen zoals blank metaal, beton en blank hout. Dit zijn materialen die al mooi zijn bij gebruik maar nog mooier worden bij verouderen. Deze ingrediënten passen naadloos in de karakteristieke structuur van de begane grond. Op de verdiepingen bevindt zich een meer ‘standaard kantoor’ met systeemplafond, glas en een centrale kern. OOK besloot een knip te maken tussen de uitstraling van de verdiepingen en de begane grond, waarbij de herkenbare zwarte kern met veel functies en materialen de constante is op alle verdiepingen.
Duurzaamheid zit hem in het bewust omgaan met wat er is, maar ook in hoe het gebruikt wordt. OOK kiest er vaak voor om het betonnen plafond en de installaties in het zicht te laten, echter op de verdiepingen was een systeemplafond aanwezig. Het weghalen van plafonds zou kapitaalvernietiging zijn. Voor OOK zit duurzaamheid in dit ontwerp naast materialisatie of hergebruik van meubilair ook in de flexibiliteit van het gebruik. Overlegruimtes zijn opgebouwd uit blokken met diverse materialen zoals glas, vilt en whiteboard. Deze passen goed bij de dynamische en agile manier van werken.
OOK maakt graag een prettige leef- en werkomgeving. Door het strategisch kiezen en positioneren van een programma wordt een gebouw veel beter bruikbaar. In de verschillende overleggen met de medewerkers kwam OOK erachter dat samen werken erg belangrijk is maar ook dat bijna niemand meer dan 2 uur op dezelfde plek zit. Als reactie erop ontwierp OOK meer aanlandplekken dan werkplekken. Overleggen in een treincoupé, staand vergaderen, in stilte alleen werken of informeel vergaderen op de bank of een wedstrijdje pingpong; het kan allemaal in het nieuwe kantoor.
OOK maakt graag een prettige leef- en werkomgeving. Door het strategisch kiezen en positioneren van een programma wordt een gebouw veel beter bruikbaar. In de verschillende overleggen met de medewerkers kwam OOK erachter dat samen werken erg belangrijk is maar ook dat bijna niemand meer dan 2 uur op dezelfde plek zit. Als reactie erop ontwierp OOK meer aanlandplekken dan werkplekken. Overleggen in een treincoupé, staand vergaderen, in stilte alleen werken of informeel vergaderen op de bank of een wedstrijdje pingpong; het kan allemaal in het nieuwe kantoor.
OOKarchitecten BV
Schimmelpenninckkade 40
3813AE Amersfoort
Contact
033-4893320
info@ookarchitecten.nl
Social
Privacy