Poolhouse VDE
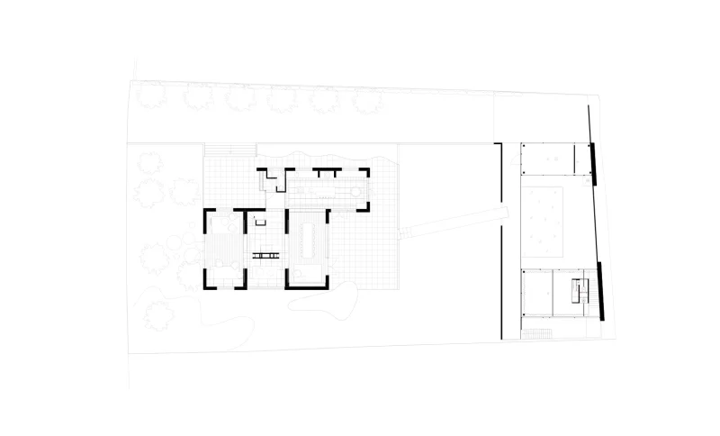
Het plan ligt in de diepe achtertuin van een luxueuze villa op De Berg in Amersfoort. Zoals de naam van de wijk al doet vermoeden is het kavel licht glooiend. De specifieke wens was nog niet geheel uitgekristalliseerd, maar het plan zou een zwembad met zwembadhuis, een berging en een gastenverblijf moeten bevatten.
Het ontwerp is een aaneengesloten stalen object dat in een beweging al de gevraagde onderdelen verbindt en meteen een afsluiting vormt voor de achterzijde van het kavel. De rest van de tuin wordt in toom gehouden door betonnen tuinmuren en hagen.
Schijnbaar losse bewegingen smelten in het midden van de tuin samen. Een zwevend betonnen looppad verbindt het terras van de woning met de nieuwe ingreep.
Het ontwerp is een aaneengesloten stalen object dat in een beweging al de gevraagde onderdelen verbindt en meteen een afsluiting vormt voor de achterzijde van het kavel. De rest van de tuin wordt in toom gehouden door betonnen tuinmuren en hagen.
Schijnbaar losse bewegingen smelten in het midden van de tuin samen. Een zwevend betonnen looppad verbindt het terras van de woning met de nieuwe ingreep.
Locatie
Amersfoort
Opdrachtgever
Familie van den Ende
Jaar
2008-2010
Status
Gerealiseerd
Omvang
150 m2
Categorie
architectuur, villas
Partners
Bouwbedrijf Huurdeman
Team
Robin van Rossum, Martin Timmerman, Harro Rijneke
Als toevoeging op een prachtige villa op de berg maakte OOK een voorstel voor een zwembadhuis en ondergrondse slaapverdieping.
Staal, glas en beton vervlochten in een verstilde sculpturale dans rondom een prachtig zwembad.
OOKarchitecten BV
Schimmelpenninckkade 40
3813AE Amersfoort
Contact
033-4893320
info@ookarchitecten.nl
Social
Privacy