Transformatie Kantoor De Alliantie
Woningcorporatie de Alliantie hecht veel waarde aan transparantie en een laagdrempelig contact met de huurder. Om ook in de toekomst dichtbij de klant te kunnen blijven werden wij gevraagd om het traditionele cellenkantoor te transformeren naar een uitdagende werkomgeving, waarin prominent gelegenheid voor verbinding en ontmoeting tussen klant en collegas wordt geboden. De resterende metrages worden verhuurd aan andere partijen.
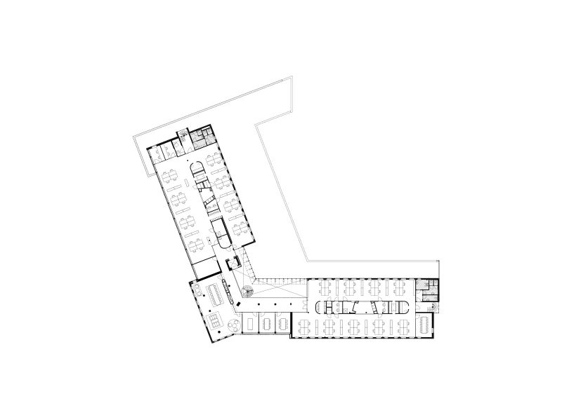
Het kantoorgebouw is gestript en geopend, waardoor er veel licht tot diep in het gebouw valt en de constructie en installaties in het zicht komen te liggen. Een as dwars door het gebouw verbindt de formele hoofdentree met de informele achteringang aan het nieuw vormgegeven parkeerplein aan de achterzijde. Hierdoor komt iedereen binnen op dezelfde plek en ontstaat er een heldere structuur. Om voldoende parkeerplekken te realiseren is een deel van het gebouw gesloopt, waardoor er een prachtige ruimte tussen het kantoor en de naastgelegen kerk is ontstaan. De sociale veiligheid in de buurt is hiermee verhoogd.
Vanaf de receptie in de centrale hal kan het gehele gebouw worden overzien, doordat enkele constructieve wanden zijn doorgebroken. De opzet van de oorspronkelijke werkvloer is omgekeerd: algemene werkplekken zijn verspreid over de zones langs de gevel en de ondersteunende functies zijn ondergebracht in een kern. Een verscheidenheid aan soorten werkplekken, zoals stiltecabines en overlegplekken, waarvan gebruik gemaakt kan worden naar behoefte, maakt het mogelijk per werkzaamheid optimaal te functioneren. Bekleed met zinderende houten latten, vormt de per verdieping in een andere kleur uitgevoerde kern tevens de oplossing voor de akoestiek.
Dankzij het concept van het nieuwe werken worden ruimte en kosten gespaard. Tegen het rauwe gestripte casco, getuige van andere tijden, bevordert het warme, zorgvuldig georganiseerde interieur verbinding en contact, resulterend in betere samenwerking, klaar voor de toekomst.
Het kantoorgebouw is gestript en geopend, waardoor er veel licht tot diep in het gebouw valt en de constructie en installaties in het zicht komen te liggen. Een as dwars door het gebouw verbindt de formele hoofdentree met de informele achteringang aan het nieuw vormgegeven parkeerplein aan de achterzijde. Hierdoor komt iedereen binnen op dezelfde plek en ontstaat er een heldere structuur. Om voldoende parkeerplekken te realiseren is een deel van het gebouw gesloopt, waardoor er een prachtige ruimte tussen het kantoor en de naastgelegen kerk is ontstaan. De sociale veiligheid in de buurt is hiermee verhoogd.
Vanaf de receptie in de centrale hal kan het gehele gebouw worden overzien, doordat enkele constructieve wanden zijn doorgebroken. De opzet van de oorspronkelijke werkvloer is omgekeerd: algemene werkplekken zijn verspreid over de zones langs de gevel en de ondersteunende functies zijn ondergebracht in een kern. Een verscheidenheid aan soorten werkplekken, zoals stiltecabines en overlegplekken, waarvan gebruik gemaakt kan worden naar behoefte, maakt het mogelijk per werkzaamheid optimaal te functioneren. Bekleed met zinderende houten latten, vormt de per verdieping in een andere kleur uitgevoerde kern tevens de oplossing voor de akoestiek.
Dankzij het concept van het nieuwe werken worden ruimte en kosten gespaard. Tegen het rauwe gestripte casco, getuige van andere tijden, bevordert het warme, zorgvuldig georganiseerde interieur verbinding en contact, resulterend in betere samenwerking, klaar voor de toekomst.
Locatie
Amersfoort
Opdrachtgever
Alliantie
Jaar
2010
Status
Gerealiseerd
Omvang
3500m2
Categorie
interieur, kantoren
Partners
Fotografie: Koen van Damme
Team
Martin Timmerman
Robin van Rossum
Harro Rijneke
Robin van Rossum
Harro Rijneke
Om ook in de toekomst dichtbij de klant te kunnen blijven werden wij gevraagd om het traditionele cellenkantoor te transformeren naar een uitdagende werkomgeving, waarin prominent gelegenheid voor verbinding en ontmoeting tussen klant en collegas wordt geboden.
OOKarchitecten BV
Schimmelpenninckkade 40
3813AE Amersfoort
Contact
033-4893320
info@ookarchitecten.nl
Social
Privacy