
Rivium Boulevard Axians
Het bestaande pand van Axians is plaatselijk voorzien van een vernieuwde houten gevel. Daarachter bevind zich een nieuw interieur met een open werkvloer waar individuele werkplekken en kantoor faciliteiten zichtbaar zijn.
Locatie
Capelle aan den IJssel
Opdrachtgever
Axians
Jaar
2021-2022
Status
Opgeleverd
Omvang
Categorie
architectuur, meubels, kantoren
Partners
Stedenrij bv
Program Kostensupport B.V.
HLE bouw bv
Gemeente Capelle aan den IJssel
Program Kostensupport B.V.
HLE bouw bv
Gemeente Capelle aan den IJssel
Team
Jojanneke Tap
Patrick Hoencamp
Simon Wassink
Patrick Hoencamp
Simon Wassink
Het kantoor van Axians aan de Rivium boulevard in Capelle aan de IJssel bevindt zich momenteel midden op een bedrijventerrein. Een log, groot en krachtig gebouw met een kenmerkende structuur. In de loop van de jaren is het gebouw stukje bij beetje gegroeid. Zo is er aan de Rivium 3e Straat later nog een gedeelte aangebouwd met een magazijn. Om beide gebouwdelen te verbinden is toen der tijd letterlijk een brug geslagen tussen de twee gebouwen.
Dat er in de loop van de periode dus veel is gebeurd is goed leesbaar aan de buitenzijde van het gebouw. OOK heeft er daarom voor gekozen om de nieuwe ingrepen zichtbaar te maken. De nieuwe houten gevel volgt de lijnenstructuur van de bestaande bouw maar is in materiaal verschillend. De vergankelijkheid van het robuuste gebouw word zichtbaar door middel van de onbehandelde houten kozijnen. In de loop van de tijd zal het zonlicht ervoor zorgen dat de puien veranderen van kleur. OOK is van mening dat natuurlijke materialen met de tijd alleen maar mooier worden.
OOK is van mening dat natuurlijke materialen met de tijd alleen maar mooier worden
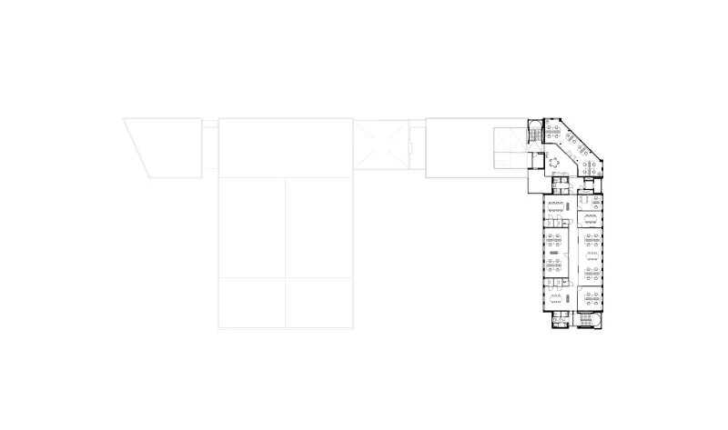
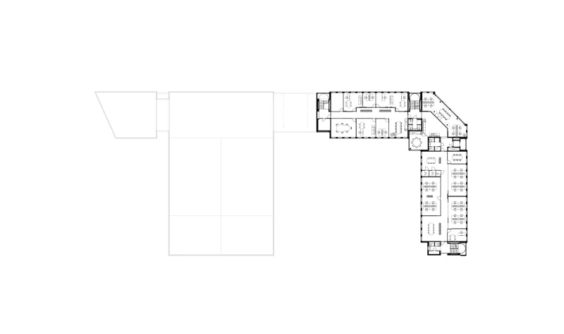
Axians bestaat uit verschillende afdelingen die onafhankelijk van elkaar kunnen opereren maar ook elkaar kunnen versterken. Door op de begane grond bij de entree een werkcafé te creëren vergroten we de zichtbaarheid en stimuleren we het samenwerken van verschillende afdelingen. Op de begane grond vind zich in de iconische hoek met vide een heerlijke lounge/bibliotheek hoek die als overloopt dient voor het vergadercentrum wat daaraan geschakeld zit.
De verdiepingen zijn ingericht op een grote diversiteit van werken. Videoplekruimtes, stilte ruimtes, aanlandplekken en verschillende grote vergaderruimtes voorzien van schermen en whiteboards geven plek aan iedereen. De verschillende verdiepingen kennen elk een herkenbare identiteit door middel een kleurschakering. De fun-ruimte die zie in de nieuwe brug bevindt is de verbinding tussen alle verdiepingen, het hart van het gebouw naast het werkcafé.
OOKarchitecten BV
Schimmelpenninckkade 40
3813AE Amersfoort
Contact
033-4893320
info@ookarchitecten.nl
Social
Privacy