
Tennisclub Vathorst
LTC Vathorst was een tennisvereniging in oprichting. Van de gemeente had de vereniging een stuk grond toegewezen gekregen in de Wijk Vathorst, naast enkele voetbalvelden.
Om een keuze te kunnen maken voor een architect die de droom kon verwezenlijken werd er een prijsvraag uitgeschreven onder 4 partijen. OOK won en werd uitgenodigd het ontwerp te maken.
Het plan is in beginsel een stedenbouwkundige opgave met de nadruk op tuin en landschap. Het terrein lag op een prachtige plek, omgeven door grote bomen en zelf met een laantje. Het programma zou alleen bijna het gehele terrein vullen. Om te voorkomen dat het groen karakter verloren zou gaan en er niet een gravel vlakte met hoge hekken zou ontstaan werd als uitgangspunt het thema tennisPark gekozen.
Het terrein werd voorzien van een wal waarop een klein hek zou komen te staan in een beukenhaag. Hierdoor ontstond wel de gewenste afrastering, maar met een groen karakter. De wal vormde de eerste laag van de coulissen. De prachtige bomen die het terrein omgaven vormde de tweede lijn.
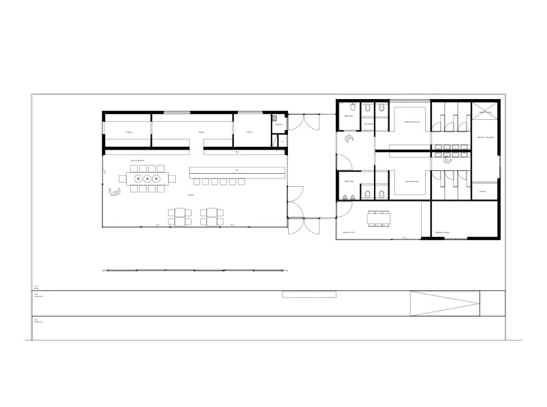
Na het rangschikken van de velden binnen de wal bleef er een plek over aan het centre court waar het clubgebouw moest verrijzen.
Het gebouw volgt de klassieke modernistische opbouw van basement, column and beam. Ranke stalen kolommen op een betonnen basement dragen het langgerekte dak. Onder dit dak bevinden zich enkele gesloten functies in een dichte met verticale staalplaat omgeven massa. De kantine wordt begrenst door een verdiepingshoge glazen vliesgevel.
Om een keuze te kunnen maken voor een architect die de droom kon verwezenlijken werd er een prijsvraag uitgeschreven onder 4 partijen. OOK won en werd uitgenodigd het ontwerp te maken.
Het plan is in beginsel een stedenbouwkundige opgave met de nadruk op tuin en landschap. Het terrein lag op een prachtige plek, omgeven door grote bomen en zelf met een laantje. Het programma zou alleen bijna het gehele terrein vullen. Om te voorkomen dat het groen karakter verloren zou gaan en er niet een gravel vlakte met hoge hekken zou ontstaan werd als uitgangspunt het thema tennisPark gekozen.
Het terrein werd voorzien van een wal waarop een klein hek zou komen te staan in een beukenhaag. Hierdoor ontstond wel de gewenste afrastering, maar met een groen karakter. De wal vormde de eerste laag van de coulissen. De prachtige bomen die het terrein omgaven vormde de tweede lijn.
Na het rangschikken van de velden binnen de wal bleef er een plek over aan het centre court waar het clubgebouw moest verrijzen.
Het gebouw volgt de klassieke modernistische opbouw van basement, column and beam. Ranke stalen kolommen op een betonnen basement dragen het langgerekte dak. Onder dit dak bevinden zich enkele gesloten functies in een dichte met verticale staalplaat omgeven massa. De kantine wordt begrenst door een verdiepingshoge glazen vliesgevel.
Locatie
Amersfoort
Opdrachtgever
LTC Vathorst
Jaar
2007
Status
Gerealiseerd
Omvang
Terreinplan 13750m2
Clubhuis 250m2
Clubhuis 250m2
Categorie
architectuur, stedenbouw
Partners
IMOSS Stedenbouw Landschap
DCOG projectmanagement
Bouwkundig tekenbureau Jaap den Hartog
Bouwbedrijf Hertzinger
De Vreeden installaties
Smeeing elektra
DCOG projectmanagement
Bouwkundig tekenbureau Jaap den Hartog
Bouwbedrijf Hertzinger
De Vreeden installaties
Smeeing elektra
Team
Martin Timmerman
Robin van Rossum
Harro Rijneke
Robin van Rossum
Harro Rijneke
Om een keuze te kunnen maken voor een architect die de droom kon verwezenlijken werd er een prijsvraag uitgeschreven onder 4 partijen. OOK won en werd uitgenodigd het ontwerp te maken.
OOKarchitecten BV
Schimmelpenninckkade 40
3813AE Amersfoort
Contact
033-4893320
info@ookarchitecten.nl
Social
Privacy