Warner Bros Netherlands
Productiebedrijven Warner Bros en BlazHoffski bundelen hun krachten en verhuizen samen met tv-producent Dahl TV naar de Willem Fenengastraat te Amsterdam. Hierdoor ontstaat een prachtige kans om, daar waar de formules elkaar versterken, gebruik te maken van gezamenlijke faciliteiten. Het nieuwe pand is aangehuurd door huisvestingsadviseur Solved, tevens verantwoordelijk voor het projectmanagement.
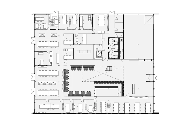
De opdrachtgevers spraken de wens uit om in hun nieuwe behuizing een sfeer te creeren waarin creativiteit en communicatie gestimuleerd worden door een ongedwongen opzet. Tijdens het productieproces kan het er chaotisch aan toe gaan. Werken in de media is geen standaard kantoorwerk. In het concept van de lobby, uitgelegd langs een strak stramien, kan het karakteristieke chaotische tot zijn recht komen binnen een heldere structuur. Vrijheid in gebondenheid.
Met dit ontwerp is een draaiboek verschaft voor de mensen achter de schermen, een visueel script dat creativiteit en ontwikkeling van de medewerkers op de werkvloer waarborgen kan.
De opdrachtgevers spraken de wens uit om in hun nieuwe behuizing een sfeer te creeren waarin creativiteit en communicatie gestimuleerd worden door een ongedwongen opzet. Tijdens het productieproces kan het er chaotisch aan toe gaan. Werken in de media is geen standaard kantoorwerk. In het concept van de lobby, uitgelegd langs een strak stramien, kan het karakteristieke chaotische tot zijn recht komen binnen een heldere structuur. Vrijheid in gebondenheid.
Met dit ontwerp is een draaiboek verschaft voor de mensen achter de schermen, een visueel script dat creativiteit en ontwikkeling van de medewerkers op de werkvloer waarborgen kan.
Locatie
Amsterdam
Opdrachtgever
Warner Bros, Blazhoffski en Dahl
Jaar
2019
Status
Gerealiseerd
Omvang
4000 m2
Categorie
interieur
Partners
Solved Projectmanagement
Fotografie: Maarten Noordijk Photography
Fotografie: Maarten Noordijk Photography
Team
Robin van Rossum, Domile Toretti, Simon Wassink
Productiebedrijven Warner Bros en BlazHoffski bundelen hun krachten en verhuizen samen met tv-producent Dahl TV naar de Willem Fenengastraat te Amsterdam.
Een nieuwe vide brengt licht en geeft structuur aan het donkere diepe gebouw.
Door de constructie in het zicht te houden blijft het industriele karakter van het pand herkenbaar. Alle openingen, puien en hoge kasten zijn uitgelijnd op de dominante hoogte van 2,50 meter, wat rust brengt in de veelheid aan indrukken. In elke kamer en rond elke zithoek in de open ruimte wordt een tapijtvloer omzoomd door parket. Aan het plafond wordt deze omkadering beantwoord door hoge balken, die de zo ontstane plekken markeren.
Verspringende vides brengen licht tot diep in de hal. Hier bevindt zich het restaurant, het sociale hart. In omgekeerde richting kan de blik ongestoord naar boven en naar buiten dwalen, waardoor een overzicht van het gehele gebouw wordt verschaft.
OOKarchitecten BV
Schimmelpenninckkade 40
3813AE Amersfoort
Contact
033-4893320
info@ookarchitecten.nl
Social
Privacy