
Intermontage Terwolde
Intermontage vroeg OOK om een ontwerp voor het interieur van hun nieuwe kantoor en showroom. Het gebouw was door een ander bureau ontworpen.
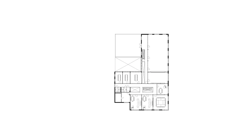
Door een paar kleine ingrepen aan het originele ontwerp, waaronder een patroon en enkel dakstraten, ontstond er aan alle kanten licht waardoor het interieur veel beter tot zijn recht zou komen.
In deze basis koker ontwierpen wij de kaders waarbinnen al de mooie producten die IM maakt tot recht zouden komen.
De verbinding met de eerste verdieping moest iets speciaals worden. Hiervoor gebruikten we het toentertijd spiksplinternieuwe hogesterkte-beton om de superslanke trappen te kunnen realiseren.
Ook nieuw voor die tijd, verticale binnentuinen en hangende groene gevels.
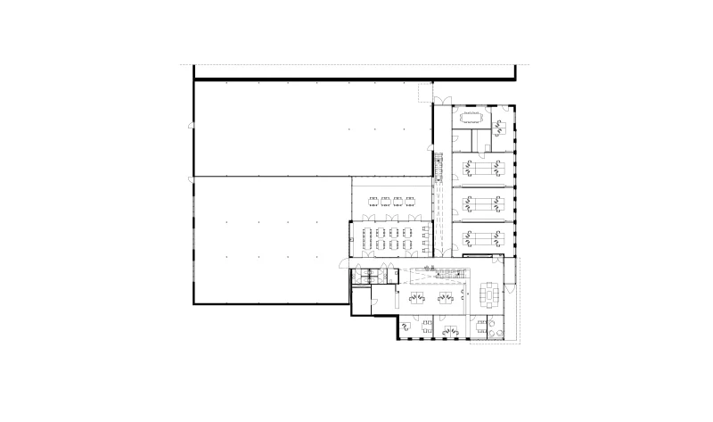
Door een paar kleine ingrepen aan het originele ontwerp, waaronder een patroon en enkel dakstraten, ontstond er aan alle kanten licht waardoor het interieur veel beter tot zijn recht zou komen.
In deze basis koker ontwierpen wij de kaders waarbinnen al de mooie producten die IM maakt tot recht zouden komen.
De verbinding met de eerste verdieping moest iets speciaals worden. Hiervoor gebruikten we het toentertijd spiksplinternieuwe hogesterkte-beton om de superslanke trappen te kunnen realiseren.
Ook nieuw voor die tijd, verticale binnentuinen en hangende groene gevels.
Locatie
Terwolde
Opdrachtgever
Intermontag
Jaar
2012
Status
Opgeleverd
Omvang
2000 m2
Categorie
interieur, meubels, kantoren
Partners
Intermontage
Bruil beton
Bruil beton
Team
Robin van Rossum
Martin Timmerman
Martin Timmerman
OOKarchitecten BV
Schimmelpenninckkade 40
3813AE Amersfoort
Contact
033-4893320
info@ookarchitecten.nl
Social
Privacy