Gezondheidscentrum Schuilenburg
Gezondheidscentrum Schuilenburg
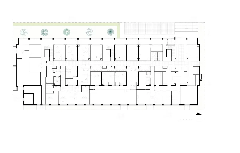
Dit gezondheidscentrum is gerealiseerd in de plint van een serviceflat, daar waar voorheen de bergingen zaten.
Locatie
Amersfoort
Opdrachtgever
Eenhoorn
Jaar
2011
Status
Opgeleverd
Omvang
2200m2
Categorie
architectuur, interieur, zorg
Partners
Getgripp
Team
Martin Timmerman
Harro Rijneke
Begane grond
Begane grond
261_img_61bc4e87aa444.jpg
261_img_61bc4e853d764.jpg
261_img_61bc4e872be78.jpg
OOKarchitecten BV
Schimmelpenninckkade 40
3813AE Amersfoort
Contact
033-4893320
info@ookarchitecten.nl
Social