Computerweg Hoefkwartier
Computerweg Hoefkwartier
De nieuw te ontwikkelen stadswijk Hoefkwartier in Amersfoort wordt een wijk waar wonen, werken, leren en ontspannen samenkomen. Opdrachtgever HSA vroeg ons om een ontwerp te maken voor “Computerweg 1” aan het nieuw te ontwikkelen stationsplein. Diverse functies komen hier samen waarbij het totaal voldoet aan de principes gemengd, inclusief, levendig, groen en compact. Zo moet er een complementair woningaanbod komen voor uiteenlopende inkomensgroepen, een ruimte voor daghoreca en kantoren. Waarbij deze de overgang vormt van het OV-knooppunt richting de dynamische, inclusieve stadswijk. Dit allemaal ingebed in de groene omgeving.
Locatie
Amersfoort
Opdrachtgever
HSA
Jaar
2020-heden
Status
Structuur ontwerp
Omvang
20.000m²
Categorie
architectuur, stedenbouw, woningbouw, kantoren
Partners
Team
Martin Timmerman
Jojanneke Tap
Jasper Timmerman
OOK ontwierp een uiterst duurzaam gebouw, in de vorm van een blok. Bestaande uit laagbouw en een deel hoogbouw dat de plek van het stationsplein markeert en een middel is om stedelijke dichtheid te bereiken. Ontmoeten gebeurt in de centrale binnentuin in het hart van het gebouw. Door te spelen met de raamopeningen en balkons ontstaat een prettige schaal die opgaat in de omgeving, net als de groene daken die levendigheid bieden. De hoogbouw is voorzien van een setback, dit in verband met bezonning en om de windhinder door valwinden te reduceren.
 

In het blok komen diverse woningen en bijzondere typologieën zoals tweelaagse stadswoningen en maisonnettes. Het wonen gebeurt straks op hoogte waardoor de bewoners optimaal verbonden zijn met de (groene) omgeving. Het werken gebeurt in eigentijdse kantoorruimtes, al dan niet op de verdieping die door de centrale ligging aan het stationsplein goed bereikbaar zijn. De horeca op de kop van het gebouw speelt eveneens een rol bij het ontmoeten, waarbij de terrasfunctie in de zomermaanden zorgt voor een fijne plek om te ontspannen. 
         Ontmoeten gebeurt in het hart van het gebouw
774_img_615c1b9de9556.jpg
Door het strategisch kiezen en positioneren van de diverse programma’s en functies van de leefruimte wordt het klimaat- en toekomstbestendige gebouw straks gebruikt zoals bedoeld. Het stationsplein vormt de basis voor deze puzzel; strategisch geplaatst aan het plein vormt het de entree voor alle functies aan de “kiss and ride” zijde. Een grote duidelijke opening naar het binnengebied vormt een belangrijk onderdeel van de doorwaadbaarheid waardoor er een dynamisch spel ontstaat tussen het eigen ontwikkelgebied en de context. 
 
Om tegemoet te komen aan de duurzaamheidsambitie is gekozen voor het toepassen van circulaire materialen die recyclebaar of hernieuwbaar zijn. Natuurlijke materialen, zoals baksteen, blank materiaal, beton en blank hout met keurmerk die mooi verouderen worden tot in de finesse doorgevoerd. De gevels van het gebouw krijgen nestkasten en het groen rondom het gebouw zorgt voor verkoeling, bindt fijnstof en draagt bij aan de gezondheid van bewoners, gebruikers en bezoekers van het gebouw én de groene omgeving.
774_img_615c1b9e44ddc.jpg
           Diverse functies komen hier samen
774_img_6399c8eead16d.jpg
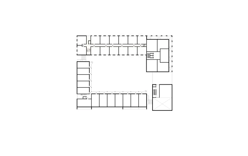
Begane grond
Begane grond
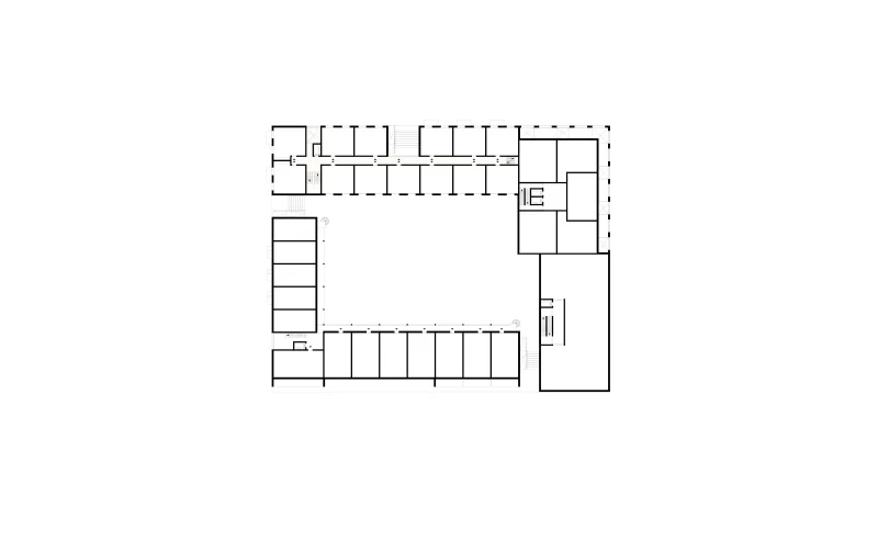
Eerste verdieping
Eerste verdieping
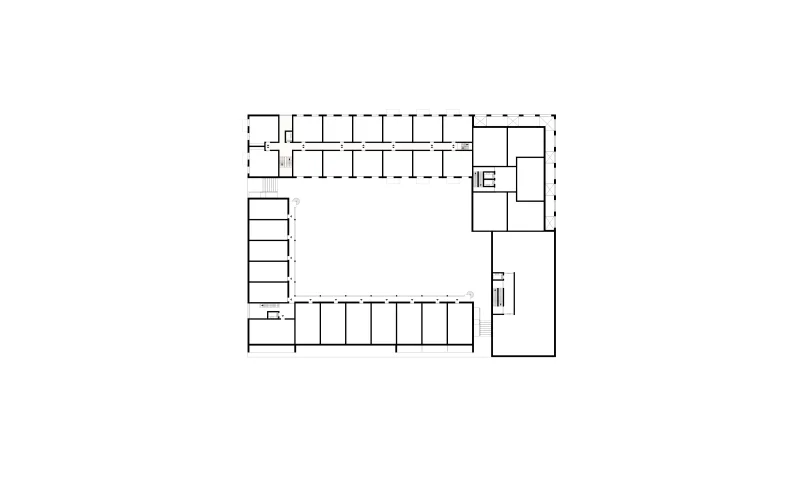
Tweede verdieping
Tweede verdieping
Derde verdieping
Derde verdieping
Vierde verdieping
Vierde verdieping
774_img_618a3f2d4709c.jpg
OOKarchitecten BV
Schimmelpenninckkade 40
3813AE Amersfoort
Contact
033-4893320
info@ookarchitecten.nl
Social