Olmenlaan 8, Leusden
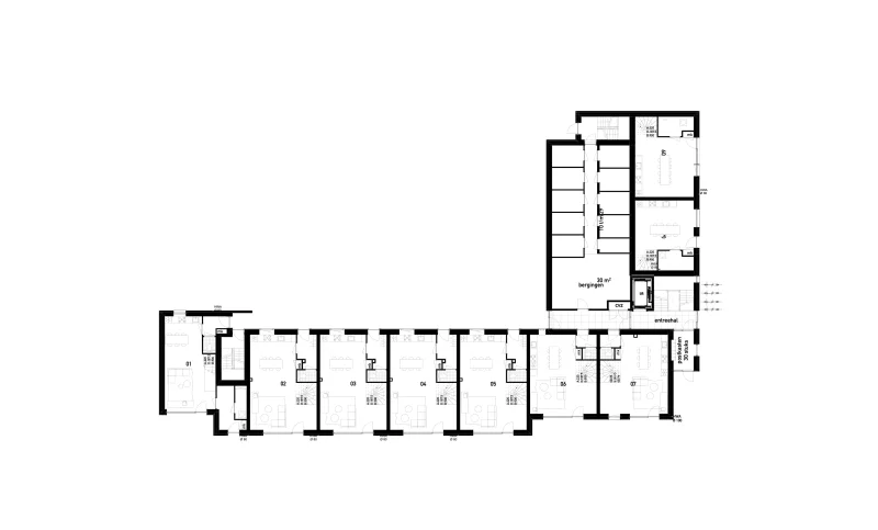
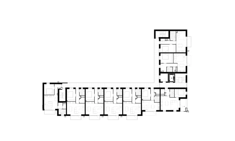
OOKarchitecten realiseert in samenwerking met SamenThuis vastgoedontwikkeling 109 woningen op het voormalig bedrijventerrein rondom het Princenhof Park in Leusden-noord.
Het bestaande park dat als een groene slinger door Leusden gaat, is de landschappelijke drager geweest. Aan deze groene hoofdas is het gemoedelijk en groen wonen. De auto’s zijn uit het zicht gehaald door ze op het achterterrein te positioneren.
De projecten Olmenlaan 6 & 8 zijn mogelijk gemaakt dankzij een goede samenwerking tussen de Gemeente Leusden, SamenThuis Vastgoedontwikkeling, Bouw- en Aannemingsbedrijf Schoonderbeek B.V., Van Driesten Harskamp - De Verbindende Bouwer en andere samenwerkingspartners.
Het bestaande park dat als een groene slinger door Leusden gaat, is de landschappelijke drager geweest. Aan deze groene hoofdas is het gemoedelijk en groen wonen. De auto’s zijn uit het zicht gehaald door ze op het achterterrein te positioneren.
De projecten Olmenlaan 6 & 8 zijn mogelijk gemaakt dankzij een goede samenwerking tussen de Gemeente Leusden, SamenThuis Vastgoedontwikkeling, Bouw- en Aannemingsbedrijf Schoonderbeek B.V., Van Driesten Harskamp - De Verbindende Bouwer en andere samenwerkingspartners.
Locatie
Olmenlaan 8, Leusden
Opdrachtgever
Samenthuis Vastgoedontwikkeling (gedelegeerd opdrachtgever)
Jaar
2021
Status
DO Omgevingsvergunning
Omvang
21 woningen
Categorie
architectuur, woningbouw
Partners
Eigenaar:
Schoonderbeek BV Bouw- en Aannemingsbedrijf
Aannemer:
Van Driesten Harskamp
BENG:
Technisch Adviesbureau Crone
Constructies:
Gravitas
Schoonderbeek BV Bouw- en Aannemingsbedrijf
Aannemer:
Van Driesten Harskamp
BENG:
Technisch Adviesbureau Crone
Constructies:
Gravitas
Team
Robin van Rossum
Jojanneke Tap
Martin Timmerman
Simon Wassink
Lisa Beijer
Jojanneke Tap
Martin Timmerman
Simon Wassink
Lisa Beijer
OOKarchitecten BV
Schimmelpenninckkade 40
3813AE Amersfoort
Contact
033-4893320
info@ookarchitecten.nl
Social
Privacy