Perron038 Zwolse Spoorzone
In een oude industriële hal in het stationsgebied Zwolse Spoorzone is Perron038 gevestigd. Dit innovatiecentrum is de plek waar bedrijven en onderwijsinstellingen evenementen en vergaderingen kunnen organiseren.
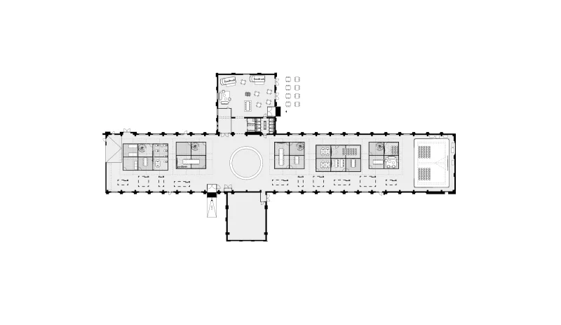
OOK heeft deze industriële hal getransformeerd naar een hypermoderne omgeving, zoals de gebruikers het vol trots omschrijven. Het bestaande industriële pand is intact gelaten en er zijn enkel nieuwe flexibele, stalen units ontworpen en toegevoegd in de hal. In de units worden alle installaties, techniek, verlichting en klimaat opgelost, waardoor een prettige werkomgeving is gecreëerd. De units zijn geclusterd tot twee volumes met daarin diverse ruimten, verspreid over twee verdiepingen. Rondom deze volumes bevinden zich open ruimtes om producten en innovaties tentoon te stellen. De hoofdentree is als een stalen unit in de industriële gevel geschoven, waardoor het een onderscheidend element is.
OOK heeft deze industriële hal getransformeerd naar een hypermoderne omgeving, zoals de gebruikers het vol trots omschrijven. Het bestaande industriële pand is intact gelaten en er zijn enkel nieuwe flexibele, stalen units ontworpen en toegevoegd in de hal. In de units worden alle installaties, techniek, verlichting en klimaat opgelost, waardoor een prettige werkomgeving is gecreëerd. De units zijn geclusterd tot twee volumes met daarin diverse ruimten, verspreid over twee verdiepingen. Rondom deze volumes bevinden zich open ruimtes om producten en innovaties tentoon te stellen. De hoofdentree is als een stalen unit in de industriële gevel geschoven, waardoor het een onderscheidend element is.
Locatie
Zwolle
Opdrachtgever
Perron038 B.V.
Jaar
2018-2019
Status
Opgeleverd
Omvang
bestaande loods 2.375 m2 BVO
units 1.230 m2 BVO
units 1.230 m2 BVO
Categorie
architectuur, interieur, kantoren, restauratie
Partners
Alferink van Schieveen Ingenieursbureau
Team
Martin Timmerman
Jessica Wierenga
Jasper Timmerman
Jessica Wierenga
Jasper Timmerman
Het restaurant en de grote presentatieruimte in Perron038 bestaan uit verschillende foodtrucks in een zijvleugel van de fabriekshal. Door middel van gordijnen en akoestische panelen functioneren de ruimten volledig autonoom. Op deze manier blijft de invulling flexibel en geschikt voor toekomstig gebruik.
OOKarchitecten BV
Schimmelpenninckkade 40
3813AE Amersfoort
Contact
033-4893320
info@ookarchitecten.nl
Social
Privacy