Appartementgebouw
Appartementgebouw
In samenwerking met projectontwikkelaar Samen Thuis heeft OOKarchitecten in Nijkerk een stedenbouwkundig plan gemaakt. Het plan voor het circa 3 hectare groot perceel in Nijkerk aan de Oude Barneveldseweg bedraagt 52 grondgebonden woningen en twee appartementengebouwen.
De uitwerking van het plan wordt door drie verschillende partijen vormgegeven. OOK ontwerpt de twee appartementengebouwen en de vijf grondgebonden woningen.
Locatie
Nijkerk
Opdrachtgever
Samen Thuis Vastgoedontwikkeling
Jaar
2022 - heden
Status
Omvang
Categorie
Partners
Team
Martin Timmerman, Jojanneke Tap
1109_img_63b6ebe4625c6.jpg
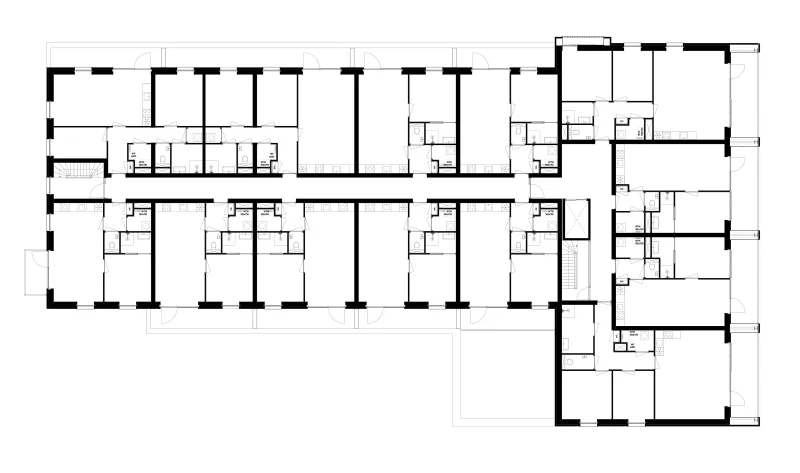
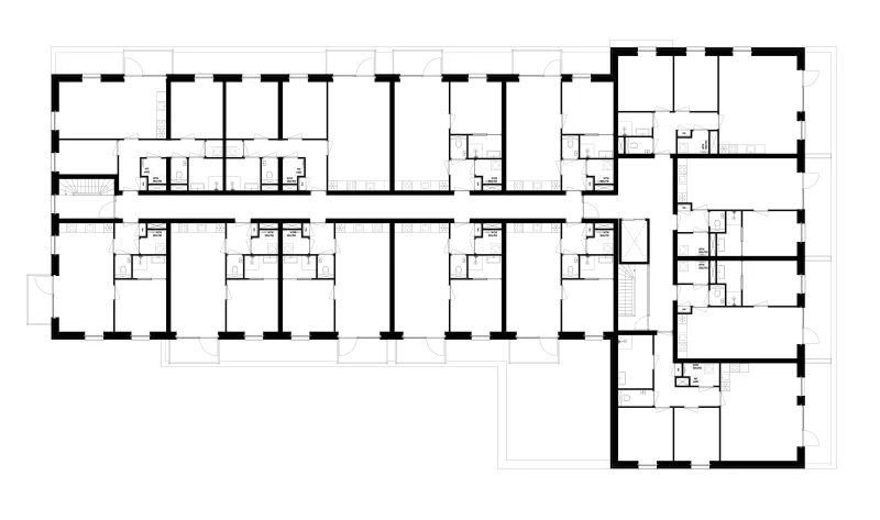
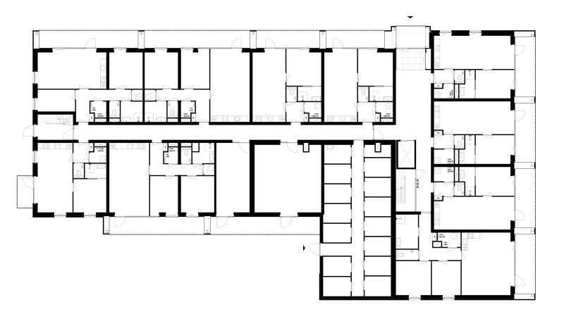
In het appartementengebouw aan de zuidzijde van het plangebied bevinden zich 35 sociale huurappartementen. Het volume is gesitueerd aan het einde van het plangebied en fungeert samen met het noordelijke appartementenblok als boekensteun om het plan samen te binden. 
Het monolitische gebouw heeft aan alle zijden buitenruimtes voor de appartementen. De buitenruimtes die georiĆ«nteerd zijn aan de binnenzijde van het plangebied zijn meer open en transparant vormgegeven. Aan de Oude Barneveldseweg zijn de buitenruimtes gekaderd in een bakstenen lijst met houten binnenzijde voor extra beschutting naar de doorgaande weg. Zij bieden een prachtig uitzicht over de landerijen. 
1109_img_63bc25561d4a7.jpg
1109_img_63b6eaadf00cf.jpg
.. fungeert samen met het noordelijk appartementenblok als boekensteun en het plan samen te binden. 
Begane grond
Begane grond
Eerste verdieping
Eerste verdieping
Tweede verdieping
Tweede verdieping
OOKarchitecten BV
Schimmelpenninckkade 40
3813AE Amersfoort
Contact
033-4893320
info@ookarchitecten.nl
Social