Colonnade onder de Polder
Colonnade onder de Polder
326_img_5bc5dd40187a4.jpg

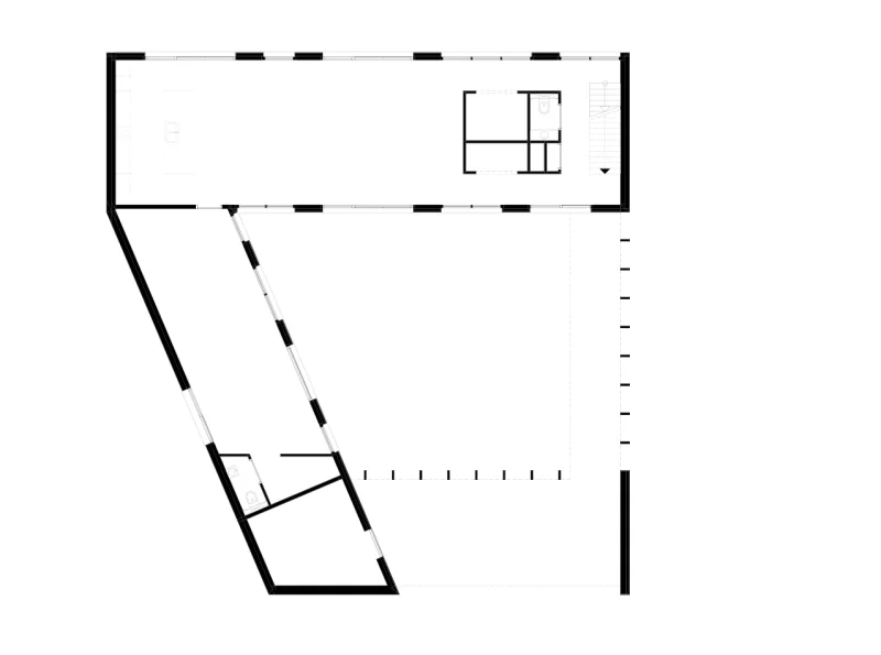
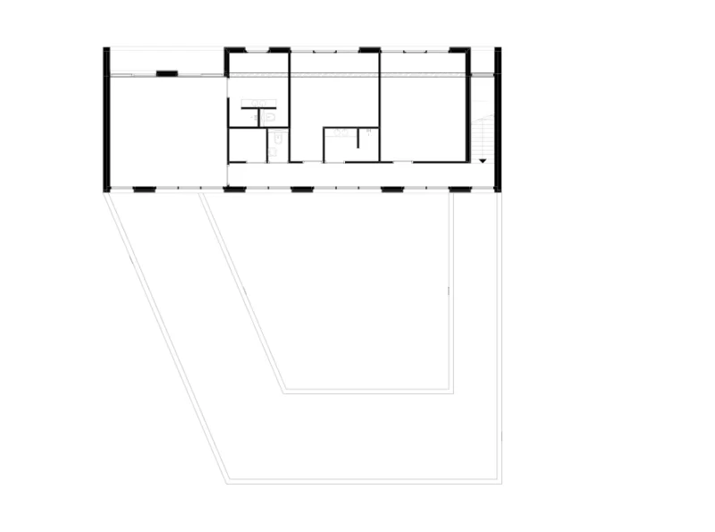
Colonnade in de polder


Met niets dan een licht glooiend kavel langs een natuurlijke oever, aan twee zijden afgeschermd door bebossing, als basis, is het plan voor dit woonhuis ontstaan uit het luisteren naar de wensen van de opdrachtgever en de aanknopingspunten die de omgeving bood. Door een basisvolume te bewerken naar behoefte werd dit luchtige minimalistische hof verkregen. De zuilengalerij maakt het mogelijk diverse gradaties tussen buiten en binnen, tussen natuur en bewoning, te ervaren. Helderwit gestucte strakke vlakken omvatten donkerrode houten kozijnen en panelen, speels verspringend in het gevelvlak bieden zij een schitterend uitzicht op het omringende landschap.


326_img_5bc5dd3ed5f25.jpg
326_img_5bc5dd40b5a05.jpg
326_img_5bc5dd3fd96f3.jpg
326_img_5bc5dd3f18e7e.jpg
326_img_5bc5dd4177c42.jpg
326_img_5bc5dd4245f05.jpg
326_img_5bc5dd42797e8.jpg
326_img_5bc5dd42be8b3.jpg
326_img_5bc5dd42e84f2.jpg
326_img_5bc5dd41c32fc.jpg
OOKarchitecten BV
Schimmelpenninckkade 40
3813AE Amersfoort
Contact
033-4893320
info@ookarchitecten.nl
Social