Campus Werkspoor
Campus Werkspoor
764B_img_5bc6d9a0646a3.jpg

Restaurant Campus Werkspoor Utrecht: Base Camp


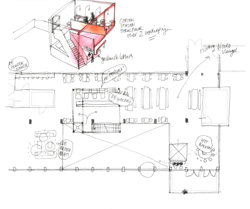
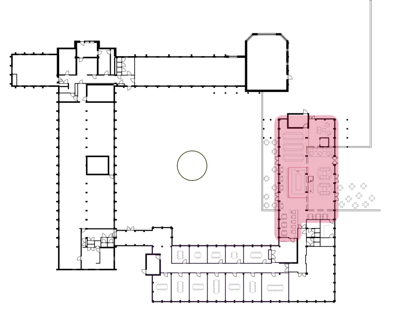
Het Werkspoorkwartier in Utrecht, met zijn vele markante industriele gebouwen, wordt ontwikkeld als broedplaats voor creatieve bedrijven. Het PEGUS gebouw (voormalige huisvesting van het Utrechts Stroomleveringsbedrijf) is daar een van. Binnen het overkoepelende concept van het bedrijfsverzamelgebouw ontwikkelen wij authentieke plannen voor individuele gebruikers.

Het restaurant wordt een aanlandplaats voor meerdere bedrijven in de directe omgeving, een BASE CAMP. De centraal gelegen bar vangt de bezoeker op, en vandaaruit begeeft hij of zij zich in de richting van een van de gemoedelijke plekken die in de grote ruimte afgeperkt zijn. Geheel in de sfeer van de historisch rijkbedeelde omgeving wordt het restaurant ingericht met tweedehands meubilair en verlichting.


764B_img_5bc6d9a0cace9.jpg
764B_img_5bc6d9a01ca21.jpg
OOKarchitecten BV
Schimmelpenninckkade 40
3813AE Amersfoort
Contact
033-4893320
info@ookarchitecten.nl
Social