
Woonzorgcomplex Seminarie
De herbestemming van het historische Seminarie (1725) tot een woonzorgcomplex in opdracht van Stadsherstel Midden-Nederland en Holland Zorggroep.
Het voormalige gebouw van de Rijksdienst voor Archeologie, Cultuurlandschap en Monumenten.
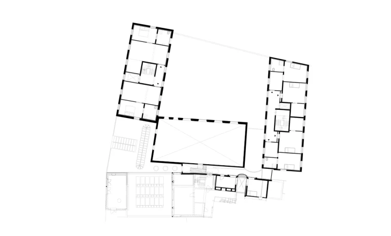
Het complex bestaat uit een aantal gebouwen waaronder de gebouwen van het voormalige oud-katholiek seminarie (1725). Van het seminarie zijn het jongenshuis, het herengebouw alsmede de kapel overeind gebleven en gerestaureerd.
Tot 1957 beheerde de Oud-Katholieke Kerk twee eigen kerkgebouwen in Amersfoort: een kerk op de plaats van het voormalige St. Nicolaasweeshuis op t Zand en een kerkgebouw in het in 1726 gestichte oudkatholiek seminarie. Deze kapel, gewijd aan Willibrord en Bonifacius, dateert van 1696. Naast de kapel vallen tevens een herenhuis en een jongenshuis onder het bestek van het rijksmonument.
De nieuwbouw is gerealiseerd in 1980 en gaat onder de naam Stad van Cahen door als bedrijfsverzamelgebouw voor bedrijven met een maatschappelijk culturele achtergrond. Samen met de Stad van Cahen boden deze gebouwen tot mei 2009 onderdak aan verschillende disciplines van de Rijksdienst voor het Cultureel Erfgoed.
Het voormalige gebouw van de Rijksdienst voor Archeologie, Cultuurlandschap en Monumenten.
Het complex bestaat uit een aantal gebouwen waaronder de gebouwen van het voormalige oud-katholiek seminarie (1725). Van het seminarie zijn het jongenshuis, het herengebouw alsmede de kapel overeind gebleven en gerestaureerd.
Tot 1957 beheerde de Oud-Katholieke Kerk twee eigen kerkgebouwen in Amersfoort: een kerk op de plaats van het voormalige St. Nicolaasweeshuis op t Zand en een kerkgebouw in het in 1726 gestichte oudkatholiek seminarie. Deze kapel, gewijd aan Willibrord en Bonifacius, dateert van 1696. Naast de kapel vallen tevens een herenhuis en een jongenshuis onder het bestek van het rijksmonument.
De nieuwbouw is gerealiseerd in 1980 en gaat onder de naam Stad van Cahen door als bedrijfsverzamelgebouw voor bedrijven met een maatschappelijk culturele achtergrond. Samen met de Stad van Cahen boden deze gebouwen tot mei 2009 onderdak aan verschillende disciplines van de Rijksdienst voor het Cultureel Erfgoed.
Locatie
Amersfoort
Opdrachtgever
Stadsherstel Midden-Nederland en Holland Zorggroep
Jaar
2013-2014
Status
Gerealiseerd
Omvang
8000 m2, 42 kamers en algemene ruimtes
Categorie
interieur, zorg, restauratie
Partners
Bouwbedrijf van Bekkum
Fotografie: Koen van Damme
Fotografie: Koen van Damme
Team
Martin Timmerman, Robin van Rossum
Het complex bestaat uit een aantal gebouwen waaronder de gebouwen van het voormalige oud-katholiek seminarie (1725). Van het seminarie zijn het jongenshuis, het herengebouw alsmede de kapel overeind gebleven en gerestaureerd.
OOKarchitecten BV
Schimmelpenninckkade 40
3813AE Amersfoort
Contact
033-4893320
info@ookarchitecten.nl
Social
Privacy