
De Verborgen Tuinen Zorg
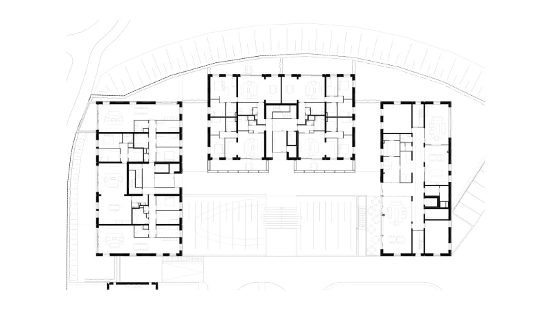
Een beukenhaag en een statige bomenrij omlijsten de Verborgen Tuinen, de nieuwe, unieke woonwijk aan de rand van Leusden. 31 Moderne grondgebonden eengezinswoningen van het traditionele oertype huis hebben groene tuinen die ook weer omzoomd worden door hagen. Twee appartementengebouwen van elk 2500 m BVO bevatten respectievelijk 15 koop- en 20 huurwoningen. Een derde appartementencomplex (1700 m2 BVO) biedt 21 zorgplaatsen, en maakt de U-vormige hofopstelling aan de westelijke rand van de wijk af. De gebouwhoogtes en -massa s sluiten aan op die van de omringende wijken en nemen daardoor van west naar oost in hoogte af.
Locatie
Leusden
Opdrachtgever
Heilijgers ontwikkeling
Jaar
2020
Status
gerealiseerd
Omvang
31 woningen, 35 appartementen en 20 zorgappartementen. Met onder de appartementen een parkeergarage.
Categorie
architectuur, zorg
Partners
Heilijgers bouw
Fotografie: Maarten Noordijk Photography
Fotografie: Maarten Noordijk Photography
Team
Robin van Rossum
Martin Timmerman
Simon Wassink
Martin Timmerman
Simon Wassink
OOKarchitecten BV
Schimmelpenninckkade 40
3813AE Amersfoort
Contact
033-4893320
info@ookarchitecten.nl
Social
Privacy